

A HOWO NX teherautóra szerelhető daru egy sokoldalú, nehéz teherbírású jármű, amely hatékony emelést és megbízható szállítást ötvöz. A HOWO NX 8×4 alvázra épülő, robusztus teljesítményt nyújt, és Palfinger SPS40000 daruval van felszerelve, amely maximálisan 16 tonna emelőkapacitást és 40 tonnméter emelőnyomatékot kínál. Ötrészes teleszkópos gémje akár 19 méterre is kinyúlik, és 360 fokos teljes elfordulást tesz lehetővé, így széles körben alkalmazható nehézgépek emelésére és anyagszállítási feladatokra az építőiparban, a bányászati mérnöki munkákban és egyéb területeken.
Munkaképesség :
16 tonsKabin típusa :
HOWO NXMéret (mm) :
12000×2550×3930Hajtásrendszer :
8×4Tengelytáv (mm) :
1800+4600+1350Motorspecifikus :
371HP/WD615.47Sebességváltó :
HW19710Első tengely (kg) :
6500/7000Hátsó tengely (kg) :
17500/17500Megjegyzés :
XCMG crane, UNIC crane, knuckle boom crane is optionalA HOWO NX 8×4 teherautóra szerelhető daru egy multifunkcionális nehézgépjármű, amely ötvözi az emelési és szállítási képességeket. Egy Palfinger SPS40000 daruval rendelkezik, amelynek maximális emelési kapacitása 16 tonna, emelőnyomatéka pedig 40 tonnméter. Az ötrészes teleszkópos gém teljesen kihúzható 19 méterre, és 360 fokos teljes forgatási funkciójával együtt rugalmas működést tesz lehetővé különféle emelési helyzetekben. Az alváz a HOWO NX sorozaton alapul, amelyet egy 9,7 literes, 273 kW teljesítményű dízelmotor hajt, egy 10 sebességes sebességváltóval és egy légfékrendszerrel párosítva, hogy stabil teljesítményt biztosítson összetett munkakörülmények között.
31 tonna össztömegével és 8150 × 2450 × 600 mm-es raktérméretével mind a berendezések emelésére, mind az építőanyagok szállítására vonatkozó igényeket kielégíti. A kitámasztók 7,25 méteres teljes fesztávolságot biztosítanak, biztosítva az üzemi stabilitást. HOWO 16 tonnás gémdaru teherautó Különösen alkalmas kommunális építkezésekhez és bányászati műveletekhez. 21,5 méteres emelési magasságával és 18,6 méteres maximális munkaköri sugarával hatékony koordinációt biztosít a nehéz anyagok emelése és a közepes és rövid távolságú szállítás között.

A CS TRUCKS professzionális gyártója a teherautók területén,
garantáljuk, hogy minden termék vadonatúj és kiváló minőségű.
»»II.Termékmeghatározás és bevezetés:
Gyártó:CS TEHERAUTÓK
Termékjellemzők
▶ Megbízható alváz: HOWO 8×4 nagy teherbírású alvázra épül, akár 40 tonna hasznos teherbírással.
▶ Erős motor: SINOTRUK WD615.47 dízelmotorral, 371 LE teljesítménnyel, 9,726 literes lökettérfogattal.
▶ Tartós daru: PALFINGER SPS40000 teleszkópos gémdaruval felszerelve, a maximális emelési súly 16 tonna.
▶ Nagy doboz: A rakománydoboz mérete 8150 × 2450 × 600, amely alkalmas nagy áruk szállítására.
»» II. Termékparaméter a HOWO NX gémdaruhozteherautó:
| Jármű műszaki paraméterei | |
| Termék neve | HOWO NX teherautó daruval Palfinger SPS40000 |
| Megengedett össztömeg (kg) | 31000 |
| Saját tömeg (kg) | 18660 |
| Teljes méretek (mm) | 12000×2550×3930 |
| Tengelytáv (mm) | 1800+4600+1350 |
| Maximális utaslétszám | 3 |
| Közelítési/távolodási szög (°) | 17/11 |
| Első/hátsó túlnyúlás (mm) | 1550/2700 |
| Max. vezetési sebesség (km/h) | 89 |
| Alváz műszaki paraméterei | |
| Alváz modell | HOWO NX |
| Motormodell | WD615.47 |
| Üzemanyag típusa | Dízel |
| Hengerek száma | 6 |
| Elmozdulás | 9,726 liter |
| Max. teljesítmény | 371 LE (273 kW) |
| Névleges sebesség | 2200 fordulat/perc |
| Max. nyomaték | 1500 Nm |
| Sebesség max. nyomatéknál | 1100-1600 fordulat/perc |
| Terjedés | HW19710, 10 sebességes |
| Első/hátsó tengelyterhelés | 6500/7000/17500 kg |
| Tengelyek száma | 4 |
| Laprugók száma | 2012.11.11. db |
| Fékek | Légfékek |
| Gumiabroncs mérete | 12.00R20 |
| Gumiabroncsok száma | 12+1 db |
| Daru paraméterei | |
| Daru modell | Palfinger SPS40000 |
| Max. emelési súly | 16 000 kg |
| Max. emelési nyomaték | 40 méter |
| Maximális elérhetőség | 18,6 méter |
| Maximális emelési magasság | 21,5 méter |
| A gémrendszer hossza (behúzva) | 6,23 méter |
| A gémrendszer hossza (teljesen kinyújtva) | 19 méter |
| Gémszakaszok száma | 5 |
| Üzemi nyomás | 32 MPa |
| Forgási szög | 360 fokos teljes forgatás |
| Kitámasztókar fesztávolsága (teljesen kinyújtva) | 7250 mm |
| Raktér paraméterei | |
| Doboz belső mérete (mm) | 8150×2450×600 mm |
| Anyag | Szénacél |
| Vastagság | Padló: 4 mm; Falak: 3 mm |

»» Ⅲ. HOWO Alváz előnyei
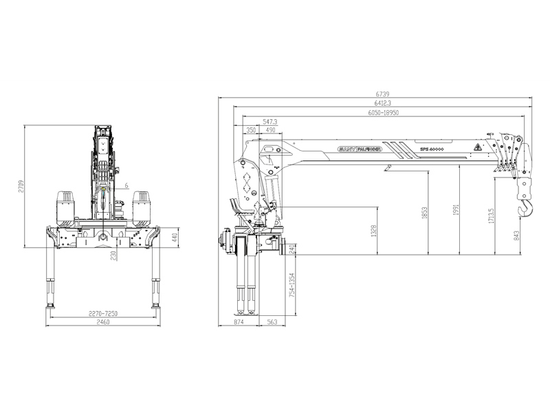
»» Ⅵ. Palfinger SPS40000 daru specifikációk:
![]() | ![]() |
| Modell | SPS40000 |
| Névleges emelési nyomaték | 40 méter |
| Névleges emelőképesség | 16000 kg (2,5 méter) |
| Max. elérhetőség | 18,6 méter |
| A horog max. zsinórjai | 6 |
| Forgásszög | Folyamatos |
| Gém emelési szöge | 0 ~ 75° |
| Max. emelési magasság (a talajtól mért magasság a kitámasztókarok teljes kinyújtása után) | 21,5 méter |
| A gémrendszer hossza (behúzva) | 6,23 méter |
| A gémrendszer hossza (teljesen kinyújtva) | 19 méter |
| Gémszakaszok | 5 |
| Kitámasztókar fesztávolsága (teljesen kinyújtva) | 7250 (mm) |
| Ajánlott áramlási sebesség | 80 ~ 110 l/perc |
| Üzemi nyomás | 32 MPa |
| Ajánlott olajtartály-űrtartalom | 300 liter |
| Daru nyomatéka (dinamikus) | 913,8 kNm |
| 93,1 tonna | |
| Torziós nyomaték (dinamikus) | 52,5 kNm |
| 5,4 méter | |
| Daru súlya | 6000 kg |
1. a terveket a következőképpen tudjuk elkészíteni: az Ön igényei szerint.
2. a következőket tudjuk kínálni Önnekkiváló minőségű és elfogadható áron
3. felajánlhatjuk az Önétmegbízható értékesítés utáni szolgáltatás
4. van nekünkképzett, professzionális tervezőcsapat
5.gyors szállítás. bármilyen rendelést szívesen fogadunk.
A CS TRUCKS minden típusú HOWO speciális teherautóhoz és pótkocsihoz szállít (eredeti, OEM és cserealkatrészeket) kedvezményes áron és kiváló minőségben, hogy biztosítsa ügyfeleink teherautóinak és pótkocsijainak jó üzemállapotát.

SINOTRUK HOWO nehéz tehergépkocsik exportra

SINOTRUK HOWO teherautóra szerelt daru szállításra kész
Hagyj üzenetet
Szkennelés Wechat/WhatsApp felületre :